聖元環保股份有限公司下屬項目公司 梁山縣聖元環保電力有限公司 的梁山聖元-水冷壁管更換已經具備招標條件,現對本工程施工進行 公開 招標,歡迎有意向的投標人前來參與投標。
一 、項目概況
1、項目名稱:梁山聖元-水冷壁管更換;
2、工程建設地點:山東省濟寧市梁山縣聖元環保電力有限公司內。
二、招標範圍及內容
1、招標範圍:在現狀條件下,根據招標人提供的施工圖紙、水冷壁施工說明相關規範及招標人要求完成梁山聖元-水冷壁管更換施工投標報價,與本工程建設相關的所有項目均屬於本次招標範圍。
2、工期要求: 7 個日曆天,具體開工日期以招標人書麵通知為準。
3、質量要求:符合《建築工程施工質量驗收統一標準》及其他相關規範合格標準。
4、其他要求:具備本次施工相關資質。
三、投標人資格要求及審查辦法
1、本招標要求投標人須具備有效的鍋爐A安裝、修理、改造等相關資質和《施工企業安全生產許可證》。(不要求時,下劃線內容修改為“/”)
2、 投標人擬擔任本招標的項目負責人(即項目經理,下同)須具備有效的 / 級 / 專業注冊建造師執業資格,並具備有效的安全生產考核合格證書(B證)。(不要求時,下劃線內容修改為“/”)
3、本招標 不接受 聯合體投標。
4、投標人所承建的工程近 3 年內未發生過重大質量事故。
5、本招標采用 資格後審 方式對投標人的資格進行審查。
6、其他要求:無。
四.招標文件的獲取
1、凡有意參加的投標人,請於 2025 年1月18日至2025年1月23日通過聖元環保友雲采門戶網站(網址同下)免費下載電子招標文件等相關資料。
2、投標人獲取招標文件後,應檢查招標文件完整性。
五、評標辦法和定標方式
1、本招標項目采用的評標辦法:綜合評分法。
2、本招標項目采用的定標方式:采用評定分離方式確定中標人。
六、投標文件的遞交
1、投標文件遞交的截止時間(即投標截止時間或開標時間): 2025 年 1月23日10時00分(北京時間),投標人應在截止時間前通過聖元環保友雲采門戶網站(網址同下)遞交電子投標文件;
2、逾期上傳的投標文件,聖元環保友雲采門戶將予以拒收。
七、發布公告的媒介
本次招標公告同時在聖元環保友雲采門戶(https://pur.yonyou.com/chinasyep)、聖元環保股份有限公司官網(網址http://ophn.cn)和中國采購與招標網(網址https://www.chinabidding.com.cn)上發布。
八、供應商注意事項
有意參與投標的供應商可登陸聖元友雲采門戶(網址同上)在首頁幫助中心下載相關手冊,新供應商需先按照《新供應商注冊手冊》進行免費注冊,已注冊的供應商可直接按照《供應商投標操作手冊》參與投標。供應商注冊等相關問題可聯係轉8105。
九、聯係方式
招標人:梁山縣聖元環保電力有限公司
地 址:山東省濟寧市梁山縣楊營鎮大楊村
聯係人:徐先生 電話:
十、工程內容:
|
序號 |
施工內容 |
工程量 |
備注 |
|
1 |
水冷壁拆除 |
70根 |
以實際工作量結算 |
|
2 |
水冷壁安裝 |
70根 |
以實際工作量結算 |
|
3 |
水冷壁保溫拆除及恢複 |
約40㎡ |
外保溫利舊,內保溫換新 |
|
4 |
腳手架搭設/拆除 |
長14m寬3m高28m |
|
|
5 |
通球試驗及無損檢測 |
100% |
|
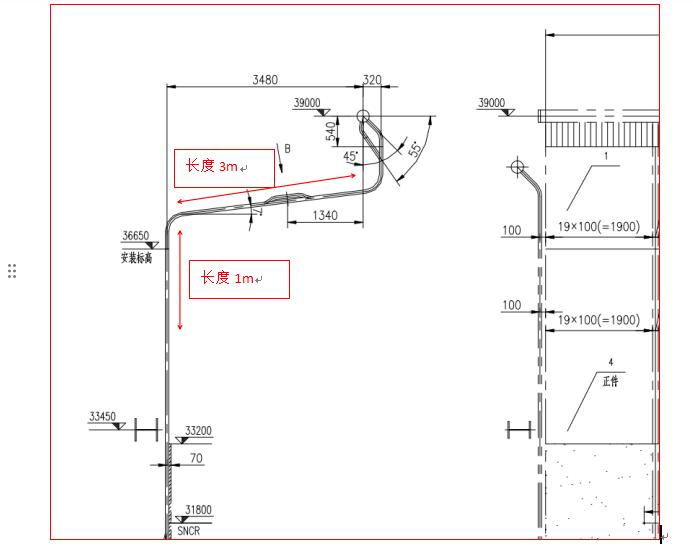
水冷壁施工說明
1、此次施工內容為更換前牆水冷壁70根(每5根為一組),更換長度為彎管下部1000mm,彎管上部3000mm,詳見圖1
2、報價包含除水冷壁材料外所有費用,所有施工所需的輔材及其他材料由投標方提供。
3、施工措施費用(腳手架搭設及安全防護措施等)由投標方負責。
4、集箱及附屬管道外保溫的拆除及恢複工作由投標方負責,包含所需保溫材料。
圖1:






